• Aktuell
  • Halle
  • Angebot
  • Team
  • Kontakt

HALLE

  • Fassade

    Die grüne Metallfassade mit einer Holzverkleidung für den Aussenbereich fügt sich dezent in die Umgebung ein und unterstreicht die Verbundenheit mit der Natur. Die Photovoltaikflächen an der West- und Südseite des Gebäudes wirken wie grosse Fenster und ergänzen das harmonische Zusammenspiel von Aesthestik und Funktionalität. Frische, sportliche Farbakzente setzen lebendige Highlights und verleihen der Kletterhalle eine unverwechselbare Optik.

  • Innenausbau

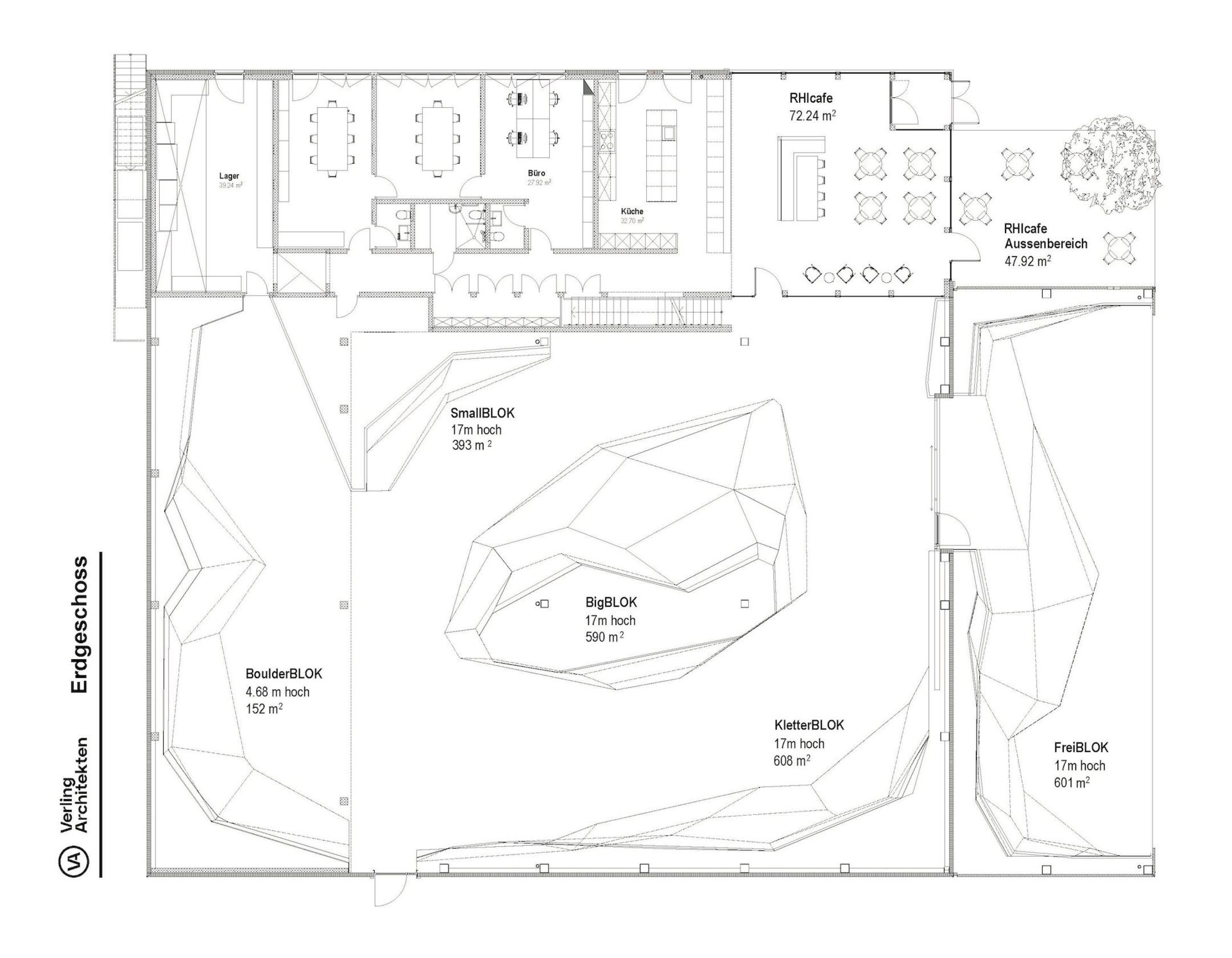
    Auf drei Etagen erwartet Dich eine beeindruckende Indoor-Kletteranlage, die durch ein grosses Tor fliessend mit der Aussenkletterwand verbunden ist. Ein familienfreundlicher Kletterbereich, separate Zonen für Kurse und Gruppen, ein Boulderbereich für alle Schwierigkeitsgrade, ein eigener Funpark für die Kleinsten und ein separater Profi-Boulderbereich mit Kraftraum bieten Abwechslung und Herausforderungen. Ein gemütliches Bistro und moderne Sanitäranlagen runden das Angebot ab.

  • Baupläne
    PDF Grundrisse PDF Schnitte

Meilensteine

2013
Grundsatzentscheid
  • Grundsatzentscheid an der LAV-Hauptversammlung für eine Konzepterarbeitung «Kletterhalle Liechtenstein»
  • Projektvorstellung bei den Gemeinden
2014
Konzepteinreichung
  • Konzepteinreichung bei der Sportstättenkommission der Regierung
2015
Positives Feedback,
Standortsuche
  • positives Feedback von Sportstättenkommission und Regierung
  • Standortsuche und Gespräche mit den Gemeinden
2016
Standortzusage, LAV-Baubeschluss, Gesuchschreiben
  • Standortzusage der Gemeinde Eschen und Schaan
  • Baubeschluss an der LAV-Hauptversammlung für eine Realisierung der Kletterhalle
  • Gesuchschreiben an die Sportstättenkommission mit Standortentscheid Schaan
2017
Erstes Subventionsgesuch, positiver Finanzbeschluss
  • Einreichung des 1. Subventionsgesuches gemäss damaligem Subventionsgesetz bei der Regierung  
  • Positiver Finanzbeschluss des Landtags
2018
Zwei Gemeinden
lehnen ab
  • Zwei Gemeinden lehnen den Finanzbeschluss ab
  • sämtliche öffentliche Subventionszusagen werden somit hinfällig
2019
neue Sportstättenförderungs- verordnung
  • Regierung verabschiedet neue Sportstättenförderungsverordnung
2020
Vorsteherkonferenz
  • Vorsteherkonferenz diskutiert die Rolle der Gemeinden ohne gemeinsamen Entscheid 
2021
Zweites Subventionsgesuch
  • Verabschiedung des 2. Subventionsgesuches zuhanden der Regierung
2022
Zustimmung Landtag, Standortwechsel, Umprojektierung
  • Landtag stimmt dem Subventionsgesuch mit Standort Schaan zu
  • Gemeinde Schaan und Vaduz bevorzugen einen Standortwechsel
  • Umprojektierung für den Standort Vaduz Mühleholz mit neuer Planung und neuer Kostenschätzung
2023
Drittes Subventionsgesuch
  • Einreichung des 3. Subventionsgesuches auf Grund des Standortwechsels von Schaan nach Vaduz Mühleholz
  • Entscheid der Gemeinde Schaan und Vaduz keine Tiefgarage unter der Kletterhalle zu realisieren​​​​​​
2024
Aktualisierung Subventionsgesuch,
positiver Landtagsentscheid
  • Das 3. Subventionsgesuch wird aktualisiert
  • Beschluss der Gemeinde Schaan und Vaduz für eine nordseitige Erschliessung
  • Definition Baurechtsfläche und Entwurf Baurechtsvertrag
  • Positiver Landtagsentscheid zugunsten der Kletterhalle
  • Vorbereitung der Unterlagen für das Baugesuch
2025
Baueingabe,
Baubewilligung,
Spatenstich
  • Baueingabe
  • Baustart
  • Tiefbau- und Rohbauarbeiten
2026
Fertigstellung
  • Innenausbau
  • Fertigstellung
  • Eröffnung

Kontakt
kletterhalle(at)alpenverein.li

Sponsoring
Petra Wille

Kommunikation & Corporate Identity
Nicole Frick

Projektleitung Bau
Silvio Wille

Trägerschaft
Liechtensteiner Alpenverein

Aeulestrasse 72
9490 Vaduz

Fürstentum Liechtenstein
www.alpenverein.li

Impressum
Datenschutz